Śmieci
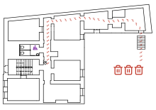
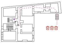
Po wyjściu na podwórko, po lewej stronie przy tujach jest 5 kontenerów 240l oklejonych na klapie logiem Hackerspace.
Śmieci w kontenerach na podwórku sortujemy:
Żółty – służące do gromadzenia metalu i tworzyw sztucznych.
Niebieski – składujemy w nich papier.
Brązowy – przeznaczone są do przechowywania odpadów biologicznych.
Zielony – służą do składowania szkła.
Czarny – składuje się w nich odpady zmieszane.
Jeśli nie wiesz do którego kosza coś wyrzucić, sprawdź tutaj: https://mpo.krakow.pl/wyszukiwarka-odpadow/
Worki do koszy na śmieci są na regale w łazience
Jeśli kontenery na śmieci są pełne, połóż worek ze śmieciami na kontenerze.
Harmonogram opróżniania kontenerów:
Terminy wywozów na najbliższy miesiąc
Wtorki - Papier i zmieszane
Środy - Bio i szkło
Czwartki - Tworzywa sztuczne i zielone odpady
Piątki - Zmieszane
Słowa kluczowe do pomagania w wyszukiwaniu
прибирання, уборка, trash, śmieci, smieci, сміття, мусор, sprzątanie
| F2244666: Screenshot_2025_11_24_23_12_15.png | |
| Nov 24 2025, 11:13 PM |
| F1061275: image.png | |
| Jun 12 2024, 10:43 PM |
| F1061272: photo_2024-06-12_21-45-13.jpg | |
| Jun 12 2024, 10:27 PM |
| F1031844: image.png | |
| Apr 11 2024, 10:17 PM |
| F200228: photo_2021-01-11_09-24-34.jpg | |
| Jan 11 2021, 9:48 AM |
- Last Author
- alwaro
- Last Edited
- Jan 21 2026, 6:29 AM
